Casi d’Uso
INIZIO
Indice
Rilievo Matterport: edificio storico-religioso
Caso di studio: rilievo edificio storico religioso con la Soluzione Matterport Pro2 3D e Analist CLOUD
Luogo: Chiesa San Pietro e Paolo Mercogliano (Av) Data: 20 luglio 2021
Dettagli rilievo
- Attrezzatura utilizzata: Matterport Pro2 3D
- Dimensioni della Chiesa: 20.78mt x 10.90mt
- Tempi di acquisizione: 30 minuti
- Tempi di elaborazione: 6 minuti
- Numero scansioni: 25 scansioni da 10 secondi
- Addetti ai lavori: 1 tecnico
- Competenze: minime
Flusso operativo
- Sopralluogo del sito
- Posizionamento camera su tripode per avvio scansioni
- Definizione del piano delle scansioni
- Avvio app Matterport Pro 2 3D
– Accensione camera
– Collegamento camera allo smartphone via l’App Matterport Capture - Avvio scansioni in sequenza
- Upload al Cloud e generazione automatica della nuvola di punti
- Misurazioni, prospetti e sezioni direttamente sulla nuvola
Dataset
- Scarica la Pianta in formato DWG ottenuto estraendo la pianta dalla nuvola.
- Scarica la Pianta prodotta dal servizio di Matterport (Formato pdf)
Storia dell’edificio
La divisione Remote Sensing di Analist Group, grazie alla preziosa collaborazione del parroco don Vitaliano Della Sala, ha eseguito il rilievo architettonico della Chiesa dei SS Pietro e Paolo, sita nel borgo di Capocastello compreso nel territorio del comune di Mercogliano. Edificata nel XIII secolo, la Chiesa ha rappresentato il centro di sviluppo dell’intero borgo ed è, dal punto di vista storico, l’edificio religioso principale del comune di Mercogliano.
La tecnologia utilizzata
Gli specialisti di Analist Group hanno, tramite la Camera Matterport Pro2 3D , rilevato gli interni dell’edificio sacro registrando in maniera puntuale e precisa, grazie alla potenza dell’attrezzatura tecnica scelta, lo stato dell’arte della Chiesa dal punto di vista strutturale. Il tutto in pochissimi minuti e con un processo di elaborazione affidabile e potente: dopo il rilievo effettuato con Matterport Pro2 3D, i tecnici hanno utilizzato Analist CLOUD per la creazione di prospetti e sezioni. Il tutto in maniera facile, veloce e, soprattutto, intuitiva. La soluzione Matterport Pro2 3D con Analist CLOUD consente di creare, misurare e mostrare modelli 3D di spazi reali. E’ pensata per tutti coloro che necessitano di scansionare spazi e metterli a disposizione di addetti ai lavori o a clienti che possono navigarlo in tutta sicurezza dal proprio tablet o pc. I tecnici non dovranno più recarsi ripetutamente sul sito per successive attività di rilievo o lavorazioni.
Come funziona
Una volta ispezionato il sito del rilievo basta collegare la camera al proprio dispositivo mobile tramite l’App Matterport Capture e avviare la scansione. Aspetto molto importante da considerare nell’effettuare le scansioni è la distanza tra una cattura e l’altra: suggeriamo di non allontanare la camera oltre 3.5m / 4m dal punto dell’ultima scansione, la giusta sovrapposizione delle immagini è fondamentale per la corretta acquisizione di tutti i dettagli. L’App Matterport Capture guida l’utente passo passo anche per questo aspetto fornendo feedback in tempo reale della qualità della scansione e l’allineamento. La tecnologia allinea automaticamente le scansioni ed esegue l’upload al cloud per la generazione del modello 3D: tutto in pochissimi secondi. Il cloud offre inoltre la prospettiva “dollhouse” di 3D, in modo che gli utenti possano vedere un’intera proprietà – la sua scala e il layout – contemporaneamente, oltre alle riprese 360°, e la nuvola di punti.
I tecnici che si occupano di rilievo sono chiamati necessariamente ad ottimizzare i processi di elaborazione per trarne un vantaggio competitivo rispetto agli altri professionisti presenti sul mercato. Bisogna, quindi, essere “portatili”. La soluzione Matterport Pro2 3D e Analist CLOUD, oltre ad essere portatile ed estremamente performante, è anche alla portata di tutti.
I vantaggi
- Il costo della Soluzione Matterport è accessibile
- Lavorare con dati 3D con la Soluzione Matterport è immediato e intuitivo.
- I tool di Matterport consentono all’utente l’interazione con lo spazio, selezionando punti di interesse collegabili ad esempio con elementi interattivi, link, descrizioni testuali.
- La possibilità di estrarre le planimetrie dell’intera struttura, generate rapidamente in bianco e nero, utili per avere ulteriori dettagli e con la possibilità di ottenere files 3D per le misurazioni con Analist CLOUD, software per il rilievo basato su tecnologia Autodesk.
- L’eliminazione del contatto in presenza: lo spazio può essere consultato in modo rapido ed estremamente realistico, senza muoversi da casa o dall’ufficio.
Matterport Experience: parola all’ingegner Meo
«Non è solo uno strumento di importanza vitale per i rilievi Superbonus ma anche in altri campi. Dal Real Estate ad ogni operazione tecnica relativa allo stato dell’arte degli edifici, Matterport mi ha fatto sgranare gli occhi ed ha migliorato il mio lavoro». A parlare è l’ingegner Giovanni Meo. Professionista di grande esperienza, poliedrico come tutti coloro che affiancano le loro competenze ed il loro talento all’innovazione. Anche lui affascinato dalla soluzione Camera Pro2 3D prodotta da Matterport ed Analist tanto da esserne conquistato: «Sto formando i miei collaboratori al suo utilizzo, peraltro semplicissimo. Ho in mente di comprare altre camere Matterport…».
Ingegner Meo, qual è stata la sua esperienza con la tecnologia Matterport?
«Ha semplificato di molto il mio lavoro: lo strumento ha una capacità d’azione velocissima e, al contempo, produce ed elabora risultati precisissimi. Effettuare rilievi è diventato un vero gioco da ragazzi, Matterport permette di muoversi in piena autonomia, senza dover chiedere il supporto ad altri e, soprattutto, garantisce l’esecuzione di tutte le misurazioni in una sola sessione di lavoro. Per capirci, non ho bisogno di tornare sul luogo del rilievo per accertare di nuovo le misure o effettuarne altre più accurate. E’ di semplice utilizzo, facilmente trasportabile ed estremamente affidabile».
In quali campi sta usando la Camera Pro2 3D?
«Parliamo di uno strumento versatilissimo capace di stupire ogni professionista. Lo sto utilizzando per i rilievi relativi al Superbonus 110%, per la produzione di tabelle millesimali o di accatastamenti. Proprio in questi giorni sto effettuando dei rilievi per la ristrutturazione di un albergo: ho detto addio a rolline e metri, uso solo Matterport. Senza dimenticare l’importanza di questo strumento nel campo del Real Estate: sto collaborando con alcune agenzie immobiliari per la creazione dei tour 3D internamente agli immobili immessi sul mercato così da poterli mostrare in maniera approfondita agli interessati ed agli eventuali acquirenti».
C’è una situazione nel quale il Matterport si è rivelato decisivo?
«Ho dovuto rilevare dei garage. La situazione era in disordine, c’erano zone buie eppure la Camera Pro2 3D è riuscita ad eseguire il proprio lavoro in maniera impeccabile riuscendo a rilevare tutto il costruito. Insomma, riesco a portarmi facilmente il lavoro in ufficio senza perdite di tempo e superando ogni tipo di ostacolo».
Consiglierebbe la Camera Pro2 3D ai suoi colleghi?
«E’ uno strumento altamente performante, ha la forza di 2-3 collaboratori. Permette di creare tour virtuali, di riportare misure e dimensioni reali al centimetro. E’ una tecnologia destinata a cambiare in meglio la vita dei professionisti».
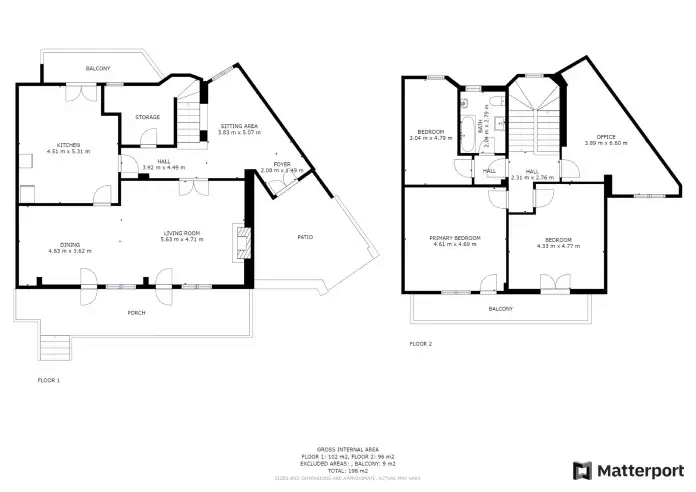
Rilievo Matterport: Villetta a due piani
Caso di studio: rilievo Villetta a due piani
Luogo: Benevento
Data: 4 settembre 2021
Dettagli rilievo
- Tecnologia utilizzata: Matterport Pro2 3D e Analist CLOUD
- Dimensioni dell’area rilevata: circa 350mq
- Tempi di acquisizione: 90 minuti
- Tempi di elaborazione: 24 ore
- Numero scansioni: 127 scansioni da 10 secondi
- Addetti ai lavori: 1 tecnico
- Competenze: nessuna
Flusso operativo
- Sopralluogo del sito
- Montaggio treppiedi Leica TRI 120 i e posizionamento Matterport sul treppiedi
- Definizione del piano delle scansioni
- Avvio app Matterport Pro 2 3D
– Accensione camera
– Collegamento camera allo smartphone via l’App Matterport Capture - Avvio scansioni in sequenza
- Caricamento del progetto in “piattaforma” Matterport direttamente dallo smartphone
- Upload al Cloud e generazione automatica della nuvola di punti e delle planimetrie
- Misurazioni, prospetti e sezioni direttamente sulla nuvola
Dataset
Scarica la pianta prodotta dal servizio di Matterport.
Osservazioni
L’App Matterport Capture ha fornito al tecnico un feedback immediato sulla qualità delle scansioni e dell’allineamento permettendo di avere un quadro chiaro sull’esito del rilievo ancor prima di tornare in ufficio. Il tecnico ha così avuto la possibilità di correggere o modificare l’approccio “on the job”. L’App, inoltre suggerisce dove collocare le postazioni successive per ottenere scansioni ottimali. A conclusione del rilievo le scansioni sono state caricate immediatamente al cloud per la generazione della nuvola di punti e delle planimetrie. E’ stata anche testata l’efficienza della camera Matterport in condizioni di scarsa illuminazione dell’ambiente. La camera è in grado di effettuare le scansioni e le condizioni di luce non pregiudicano in alcun modo la restituzione ai fini della generazione del modello 3D.
Perchè utilizzare Matterport per il rilievo di interni ed esterni
- Il costo della Soluzione Matterport è accessibile
- Lavorare con dati 3D con la Soluzione Matterport è immediato e intuitivo
- I tool di Matterport consentono all’utente l’interazione con lo spazio, selezionando punti di interesse collegabili ad esempio con elementi interattivi, link, descrizioni testuali
- Possibilità di estrarre le planimetrie dell’intera struttura, generate rapidamente in bianco e nero, utili per avere ulteriori dettagli e con la
- Generazione files 3D per le misurazioni, prospetti e sezioni con Analist CLOUD, software basato su tecnologia Autodesk
- Eliminazione del contatto in presenza: lo spazio può essere consultato in modo rapido ed estremamente realistico, senza muoversi da casa o dall’ufficio.
Rilievo Matterport: Edificio con Sala Riunioni
Caso di studio: Edificio con Sala Riunioni
Luogo: Torrette di Mercogliano (Av)
Data: 15 ottobre 2021
Dettagli rilievo
- Tecnologia utilizzata: Matterport Pro2 3D e Analist CLOUD
- Dimensioni dell’area rilevata: circa 380mq
- Tempi di acquisizione: 60 minuti
- Tempi di elaborazione: 24 ore
- Numero scansioni: 70 scansioni da 10 secondi
- Addetti ai lavori: una unità
- Competenze: nessuna
Flusso operativo
- Sopralluogo del sito
- Montaggio treppiedi Leica TRI 120 i e posizionamento Matterport sul treppiedi
- Definizione del piano delle scansioni
- Avvio app Matterport Pro 2 3D
– Accensione camera
– Collegamento camera allo smartphone via l’App Matterport Capture - Avvio scansioni in sequenza
- Caricamento del progetto in “piattaforma” Matterport direttamente dallo smartphone
- Upload al Cloud e generazione automatica della nuvola di punti e delle planimetrie
- Misurazioni, prospetti e sezioni direttamente sulla nuvola

Dataset
Scarica la pianta prodotta dal servizio di Matterport.
Osservazioni
L’App Matterport Capture ha fornito al tecnico un feedback immediato sulla qualità delle scansioni e dell’allineamento permettendo di avere un quadro chiaro sull’esito del rilievo ancor prima di completare il lavoro. L’App, inoltre suggerisce dove collocare le postazioni successive per ottenere scansioni ottimali. A conclusione del rilievo le scansioni sono state caricate immediatamente al cloud per la generazione della nuvola di punti e delle planimetrie. E’ stata anche testata l’efficienza della camera Matterport in condizioni di scarsa illuminazione dell’ambiente: la Pro2 3D è in grado di effettuare le scansioni e le condizioni di luce non pregiudicano in alcun modo la restituzione ai fini della generazione del modello 3D.
Perchè utilizzare Matterport per il rilievo di interni ed esterni
- Il costo della Soluzione Matterport è accessibile
- Lavorare con dati 3D con la Soluzione Matterport è immediato e intuitivo
- I tool di Matterport consentono all’utente l’interazione con lo spazio, selezionando punti di interesse collegabili ad esempio con elementi interattivi, link, descrizioni testuali
- Possibilità di estrarre le planimetrie dell’intera struttura, generate rapidamente in bianco e nero, utili per avere ulteriori dettagli
- Generazione files 3D per le misurazioni, prospetti e sezioni con Analist CLOUD, software basato su tecnologia Autodesk
- Eliminazione del contatto in presenza: lo spazio può essere consultato in modo rapido ed estremamente realistico, senza muoversi da casa o dall’ufficio.